首页 > 环艺新闻 > 《山水云竹 大家风范》

《山水云竹 大家风范》

2018-05-19 环艺装饰

      吴俊发艺术馆位于江西省上饶市广丰区,占地面积25亩,艺术馆展览主楼1918㎡。馆内主要收藏著名画家吴俊发先生捐赠的版画、中国画、藏书票、书法作品等有关物品,以及其他书画名家作品。是集收藏、展览、交流、创作、教育为一体的综合性艺术场所。

      吴俊发先生现任中国版画家协会副主席、江苏省美术家协会顾问、江苏省版画家协会名誉主席、国家一级美术师。50年代就与著名国画大师傅抱石、亚明先生为江苏省美术领导小组三成员之一,是江苏美术界的中坚推动者和组织者,是一位享誉国内外的著名画家。他以70余年的卓越艺术实践和成就,为新时期的版画和中国画的发展作出了贡献。

 吴俊发艺术馆陈展设计思路

风格与功能:以 室内“山水云竹”的写意主题与整体建筑外观的江南园林风格里外呼应,体现“展示成就、艺术教育、文化交流、传承弘扬”之宗旨。

色彩基调:以“黑--白--灰”为主基调,采用厚重感的赭石色彩和浅色系展板、黑色天花地面进行有机结合,局部灰白色进行调和,形成水墨丹青、幽竹雅静的艺术格调。

空间规划:按照合理布局、突出重点、节省资源原则。


▼ 一层公共展示空间

序厅:

墙面采用的竖线造型来源于竹林的秀美线条,流畅、挺拔。

地面黑金沙大理石与灰色墙面的搭配,大气、雅致、水墨风。

主展室:

灰色的活动展板矗立在厚重的哑光防滑地面,既有现代灵活实用意义,又不失古朴典雅。


▼ 二层吴俊发个人艺术成就展示区

作为吴俊发个人艺术馆的常设厅,是本艺术馆的核心展示区。

同时把序厅、公共展览厅、接待交流、收藏研究等功能区组织成合理的参观动线。

展室以四周壁柜为主,穿插不同的单体展柜,空间布局饱满,单元分配合理,动线流畅。

背景墙是吴老版画木雕,衬托主标题及吴老个人雕塑,醒目、儒雅。

 

黑色铝格栅天花与地面深灰色防滑砖相呼应,令聚光灯下的展柜显得更加突出、鲜明。

赭石熟褐色系在主展厅中令黑白灰显得和谐又不失生气;

吴老创作室墙面屏风加入传统的花格元素,大方、稳重。

二层画室

博古架、磁铁墙、红木家私、创作案几、柔和的灯光、窗外的美景,

恰似一幅“竹意清凉欲透帘”的画面。

 


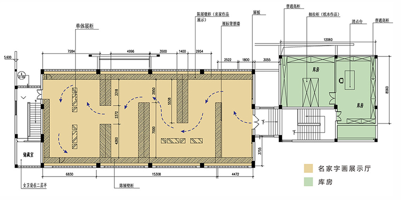
▼ 三层名家作品展厅 

斜面天花配以黑色铝通做装饰更显沉稳、大气。

本案于2013年12月完成设计,获得第五届中国建筑装饰设计艺术展CBDA设计奖“展陈空间工程类金奖”。

本案主持:靳越晖

主创设计:江澜

参加设计:方寅

参加设计:罗颂勋